Description
Cuffley Banks are delighted to offer this extended four bedroom detached house located on a sought after road in HA0.
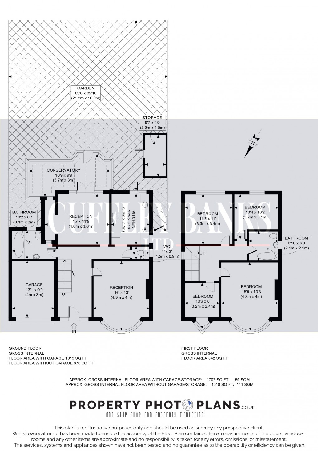
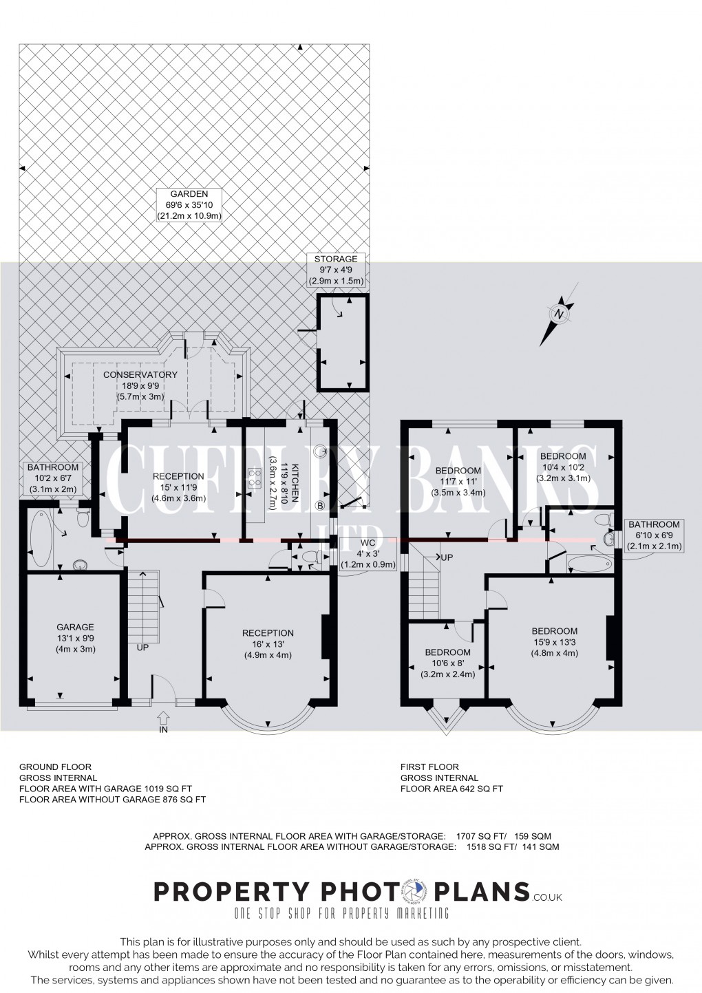
Measuring over 1,700sqft, this wonderful family home comprises of two reception rooms, fitted kitchen, ground floor three piece bathroom suite, four well proportioned bedrooms on the 1st floor and a family bathroom. Additional features include a garage own drive, circa 70ft rear garden, double glazing and gas central heating. The house offers great potential for a double storey side extension and aloft conversion (stpp). Ideal for a large family or investors looking to convert into flats (stpp).
Close amenities include Alperton and Wembley Central tube stations. Convenient to an array of shops and restaurants on the Ealing Road and the Wembley High Road. Larger scale modernisation and regeneration has been undertaken within the local vicinity, which will result into medium to long term market growth and appreciation. Viewings are highly recommended.
Call today to arrange your viewing!
Floorplan

EPC
CALL US TO MAKE AN ENQUIRY:
Market your property
with Cuffley Banks
Book a market appraisal for your property today. Our virtual options are still available if you prefer.