Description
Cuffley Banks are delighted to offer this three bedroom end of terrace house which is located on a sought after road in Perivale.
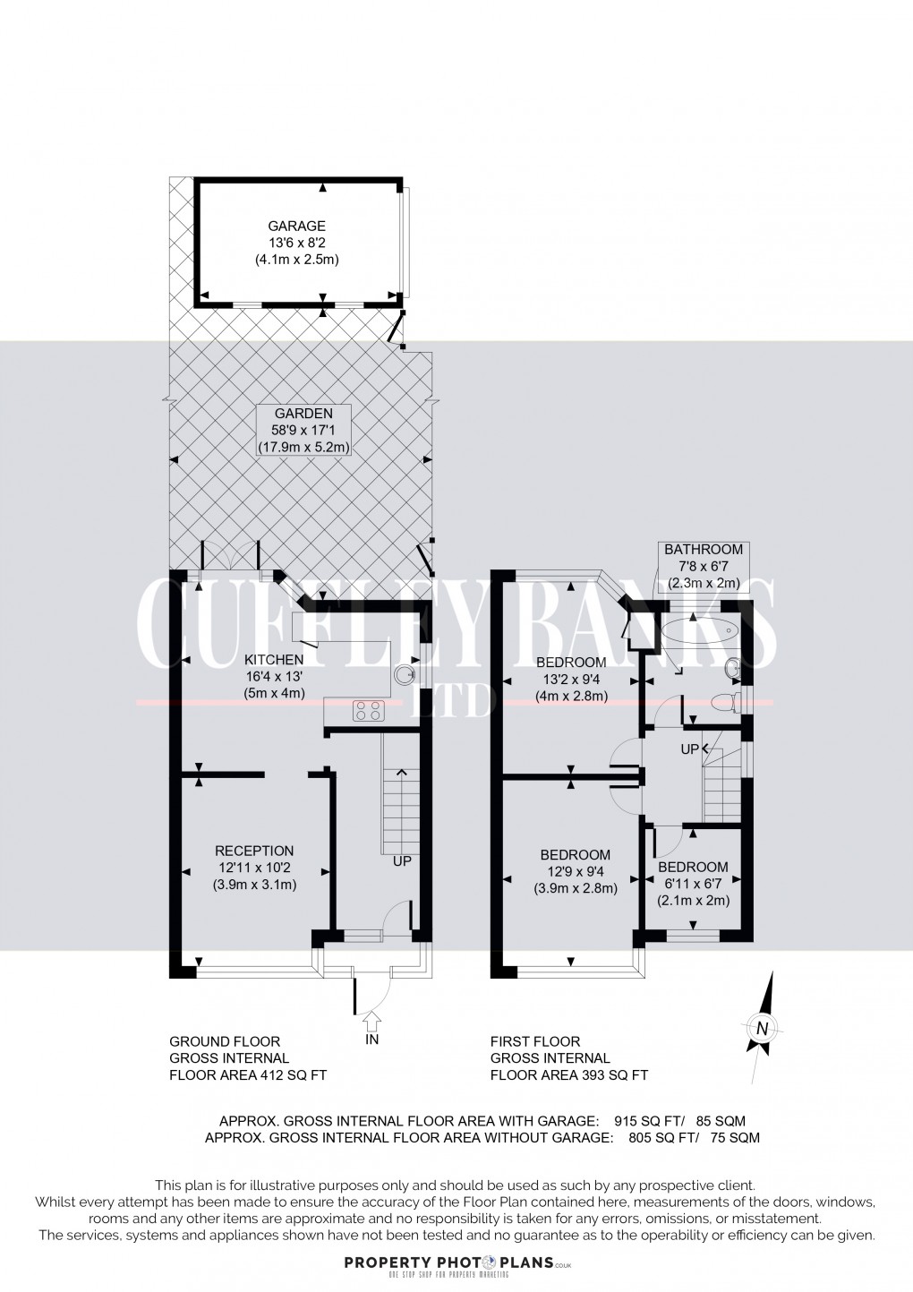
This wonderful family home comprises of a front aspect reception room, fitted kitchen and dining area, fitted family bathroom and off street parking. Additional features include a 60ft rear garden and a rear garage with access via a rear service road. The rear garden backs to the Grand Union Canal offering stunning views of the Canal and Horsenden Hill. Offering great potential for a rear extension (stpp). The house is ideal for both 1st time buyer and investors.
Local amenities include Perivale tube station and Perivale Tesco. Convenient to an array of shops and restaurants on the Bilton Road, close to highly regarded local schools, offering easy access to the A40 & A406. Sold with no upper chain. Viewings are highly recommended.
Call today to arrange your viewing!
Floorplan
EPC
CALL US TO MAKE AN ENQUIRY:
Market your property
with Cuffley Banks
Book a market appraisal for your property today. Our virtual options are still available if you prefer.
